Uși din ALUMINIU
CORTIZO Milenium 2000
SISTEME CORTIZO UȘI FĂRĂ BARIERĂ TERMICĂ

Sistemul de profile
din aluminiu pentru uși
CORTIZO Milenium 2000
Sistem pentru uși din aluminiu
făra barieră termică
făra barieră termică
Sistem de uşa pentru exterior sau interior fără barieră termică pentru spaţii comerciale şi clădiri.
SisteMUL DE PROFILE Millennium 2000 permite realizarea de uși cu balamale suprapuse în două sau trei părţi cu rezistenţă mare ce pot suporta până la 180 Kg pe foaie și uşi cu foi glisante cu deschidere automată. Această soluţie nouă care optimizează spaţiul a fost creată special pentru a rezolva problema intrărilor cu trafic intens (birouri, centre comerciale, spitale…) deoarece garantează o circulaţie bună şi în siguranţă a persoanelor în cazuri de urgenţă.
SisteMUL DE PROFILE Millennium 2000 permite realizarea de uși cu balamale suprapuse în două sau trei părţi cu rezistenţă mare ce pot suporta până la 180 Kg pe foaie și uşi cu foi glisante cu deschidere automată. Această soluţie nouă care optimizează spaţiul a fost creată special pentru a rezolva problema intrărilor cu trafic intens (birouri, centre comerciale, spitale…) deoarece garantează o circulaţie bună şi în siguranţă a persoanelor în cazuri de urgenţă.
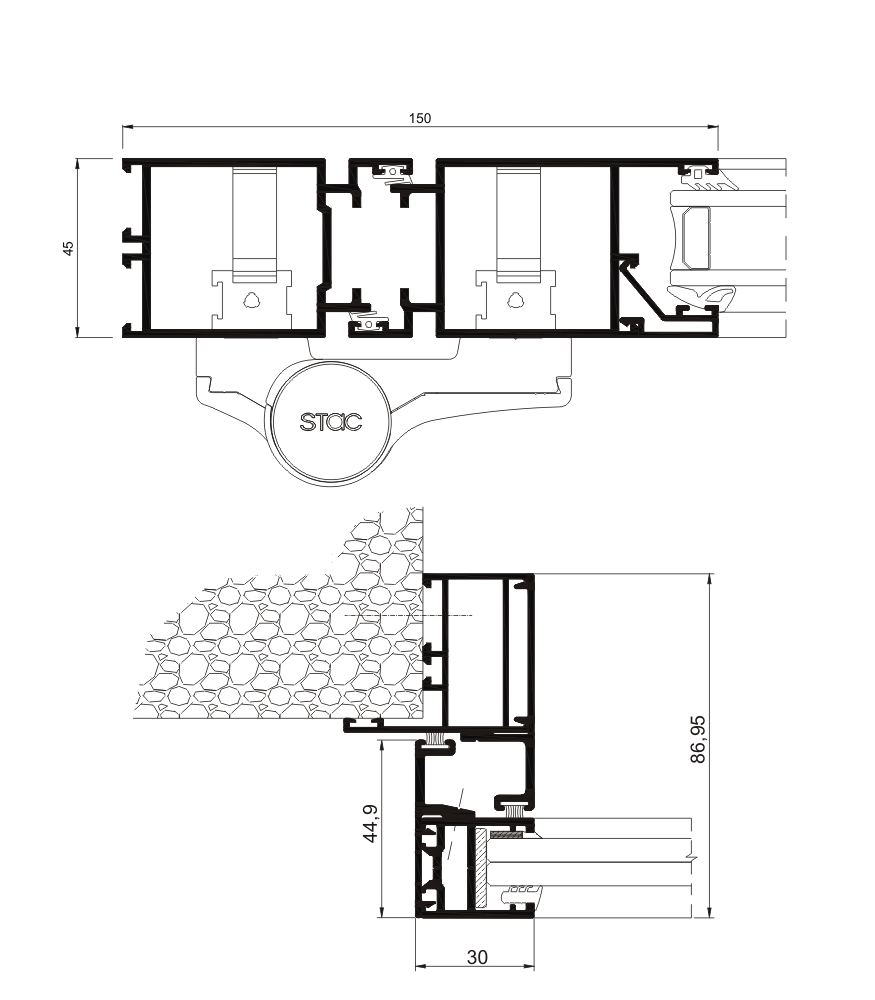
Grosime toc: 45 mm
Grosime cercevea: 45 mm
Grosime profil: 2,0 mm
Dimensiuni maxime:
Lăţime (L) = 1.450 mm; Înălţime (H) = 3.000 mm, în funcție de balamale
Greutate maximă: 190 Kg în funcție de balamale
Grosime maximă panel/geam termoizolant: 30 mm
Coeficient de transfer termic Uw: de la 2,3 (W/m²K)
Izolare acustică maximă: Rw=38 dB
Permeabilitate la aer: (UNE-EN 12207:2000) CLASA 4
Rezistenţă la impact cu un corp moale: (UNE-EN 13049) CLASA 5 (máx)
Probă de referinţă uşa 1,8 x 2.20 m. 2 foi. Sticlă laminată 3+3
Grosime cercevea: 45 mm
Grosime profil: 2,0 mm
Dimensiuni maxime:
Lăţime (L) = 1.450 mm; Înălţime (H) = 3.000 mm, în funcție de balamale
Greutate maximă: 190 Kg în funcție de balamale
Grosime maximă panel/geam termoizolant: 30 mm
Coeficient de transfer termic Uw: de la 2,3 (W/m²K)
Izolare acustică maximă: Rw=38 dB
Permeabilitate la aer: (UNE-EN 12207:2000) CLASA 4
Rezistenţă la impact cu un corp moale: (UNE-EN 13049) CLASA 5 (máx)
Probă de referinţă uşa 1,8 x 2.20 m. 2 foi. Sticlă laminată 3+3




